軽井沢 賃貸物件 /新軽井沢 アパート EXCEED軽井沢 102 の詳細
会社概要
|
売却をお考えの方へ
|
〒389-0104 長野県北佐久郡軽井沢町軽井沢東19-13
Tel : 0267-41-1667 Fax : 0267-41-1668
営業時間 :AM 9:00 - PM 17:30 (夏期延長) 定休日:水曜日
軽井沢 新軽井沢 / アパート
軽井沢駅徒歩圏内
EXCEED軽井沢 102
閑静な住宅地内にあります!
陽当たり良好です。
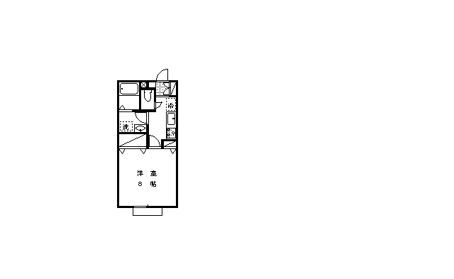
家賃 55,000円 駐車場 無
共益費 2,000 円
敷礼 55,000 / 55,000 円
入居 R8/5/下旬頃
・TVインターホン、ウォシュレット
エアコン1台付
・築年月…H18・2
こちらの物件、難点は駐車場が無いことなんです。
徒歩で勤務先に通える方、自転車通勤出来る方!
ご検討下さいませ。
アパートの周辺は閑静な住宅地内。
軽井沢駅から本当に近いのですが静かな環境です。
メイン通りから一本中に入るだけでこれだけ違うのかと思います。
スーパー、コンビニも徒歩圏にあります。
建物設備も充実しております。
・エアコン(冷暖房)…最近の軽井沢の夏、暑いですから必要な時もあります。ちょっと肌寒い時、湿気があるときなどにも活用できます。
・シャワー付の洗面台…忙しい朝にはとても便利
・TVインターホン…居留守を使うには必要ですね!
・バルコニーシャッター付…普段の生活には必要ないかもしれませんが、外出時や就寝時に防犯上あると安心!
・たっぷり収納…生活していくと何故か増えてしまう洋服や小物達。クローゼット、物入れがあり助かります。
・ウォシュレット付…今は生活必需品になりつつあります。
居室のインテリアはご入居者様次第!
お好きなお部屋作りをして快適な一人暮らしを楽しんで下さい。
現在ご入居中につき内覧は出来ませんがご検討下さいませ。
【定期賃貸借契約:2年間】
【保証会社契約要】
【ペット不可】
【家財保険加入要】
【単身者用】
こちらの物件、難点は駐車場が無いことなんです。
徒歩で勤務先に通える方、自転車通勤出来る方!
ご検討下さいませ。
アパートの周辺は閑静な住宅地内。
軽井沢駅から本当に近いのですが静かな環境です。
メイン通りから一本中に入るだけでこれだけ違うのかと思います。
スーパー、コンビニも徒歩圏にあります。
建物設備も充実しております。
・エアコン(冷暖房)…最近の軽井沢の夏、暑いですから必要な時もあります。ちょっと肌寒い時、湿気があるときなどにも活用できます。
・シャワー付の洗面台…忙しい朝にはとても便利
・TVインターホン…居留守を使うには必要ですね!
・バルコニーシャッター付…普段の生活には必要ないかもしれませんが、外出時や就寝時に防犯上あると安心!